A pianta rettangolare, a corpo semplice, si pone da un lato, sul fronte strada, con due piani fuori terra in sottotetto mansardato e copertura a pioventi su grossa orditura lignea, dall'altro, in addossamento quasi perpendicolare alla residenza, con un piano fuori terra definito sempre a due pioventi, di cui quello interno, verso la corte, ricopre il patio arcato "lolla".
La composizione muraria è affidata ad una tessitura di conci in arenaria, di dimensioni fortemente irregolari, concatenati nelle due dimensioni.
Gli interpiani mostrano l'uso dell'assito ligneo ("intaulau").
Una scansione rigorosa e, nel contempo, semplice, concede ai prospetti simmetria nelle aperture.
Esse presentano riquadrature in conci lapidei per architravi e stipiti che, per quanto rilevato, indicano forme indigene.
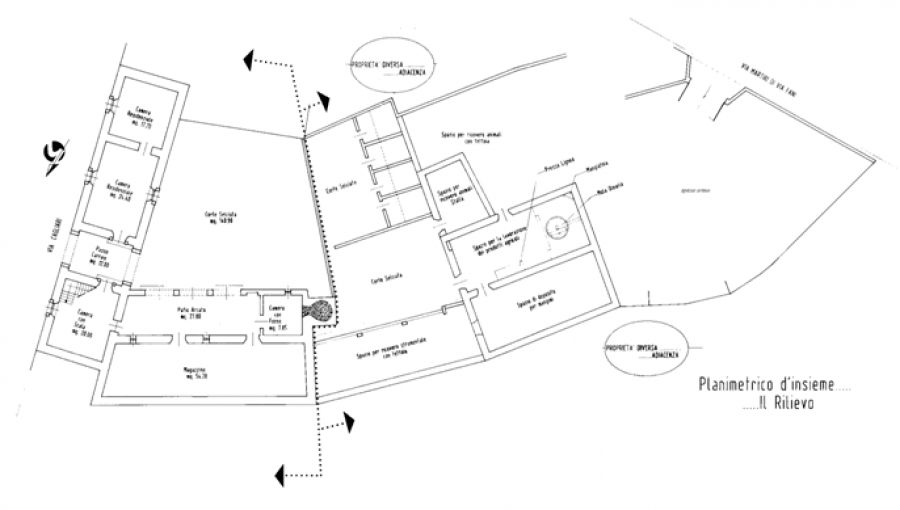
Dalla pubblica via si accede ad un contenuto cortile posteriore carrabile, pavimentato con ciottoli di pietra, attraverso un passo carraio con portale, ricavato nel corpo di fabbrica secondo lo schema tipico del recinto chiuso.
Costruzioni funzionali all'attività contadina si addossano alle murature della recinzione del lotto
“A sinistra del loggiato è collocata la cucina, addossata al "recinto", a formare il lato corto di un’ipotetica L (elle), per far sì che il maestrale ne stemperasse almeno una parete ed, ancora, per riparare gli altri vani e gli spazi aperti (da lavoro), ed il cortile dalle raffiche del vento dominante.
Alla cucina era, comunque, riservata una posizione periferica rispetto al complesso dell'abitazione, proprio per isolare l'ambiente che a causa del forno e del camino poteva alzare la temperatura della casa”.
Altro caratteristico spazio funzionale è quello riservato al forno "a palla", con la cupola fatta in mattoni crudi, appositamente realizzati in dimensioni ridotte, protetto da una tettoia, posto in aderenza alla cucina.
L'immancabile loggiato "lolla", posto non solo come risposta alla necessità di riparare i buoi, ma anche per motivi di igiene, costituisce filtro climatico e lo spazio di coordinamento per le camere, prive di finestre, che vi si affacciano e che da esso traevano luce ed aria.
